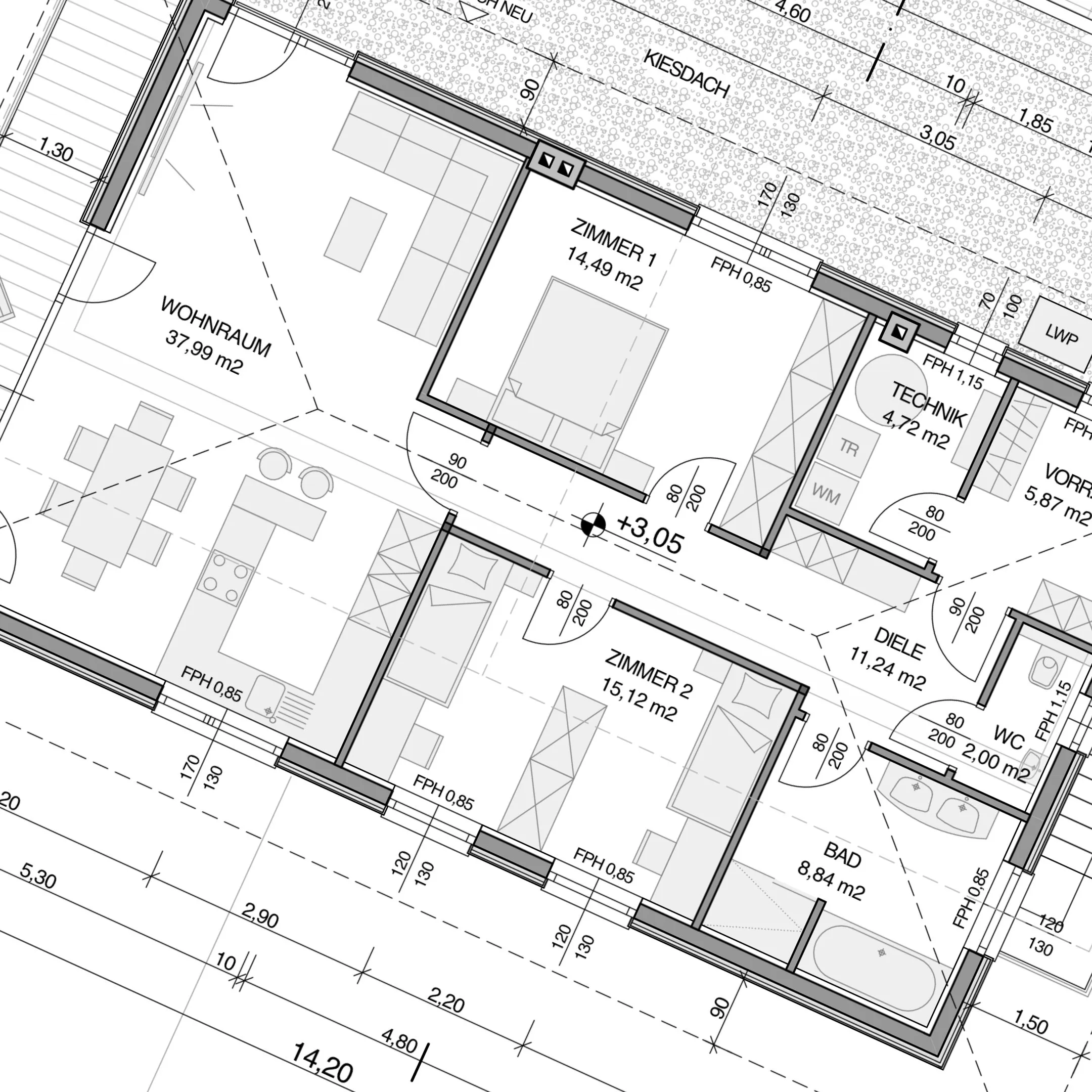
Planung
Vom ersten Strich eines Vorentwurfs bis zur letzten Detailskizze durchläuft die Planung viele Stadien:
- Bebauungsstudien
- Vorentwurf
- Entwurf
- Baukostenschätzung
- Einreichung mit Bauansuchen
- Ausführungspläne

Vom ersten Strich eines Vorentwurfs bis zur letzten Detailskizze durchläuft die Planung viele Stadien:
Um eine reibungslose Abwicklung zu garantieren, behalte ich für Sie folgende Prozesse im Blick:


Ob für Verkauf, Vermietung oder die Behörde, erhalten Sie ganz unkompliziert einen Energieausweis.