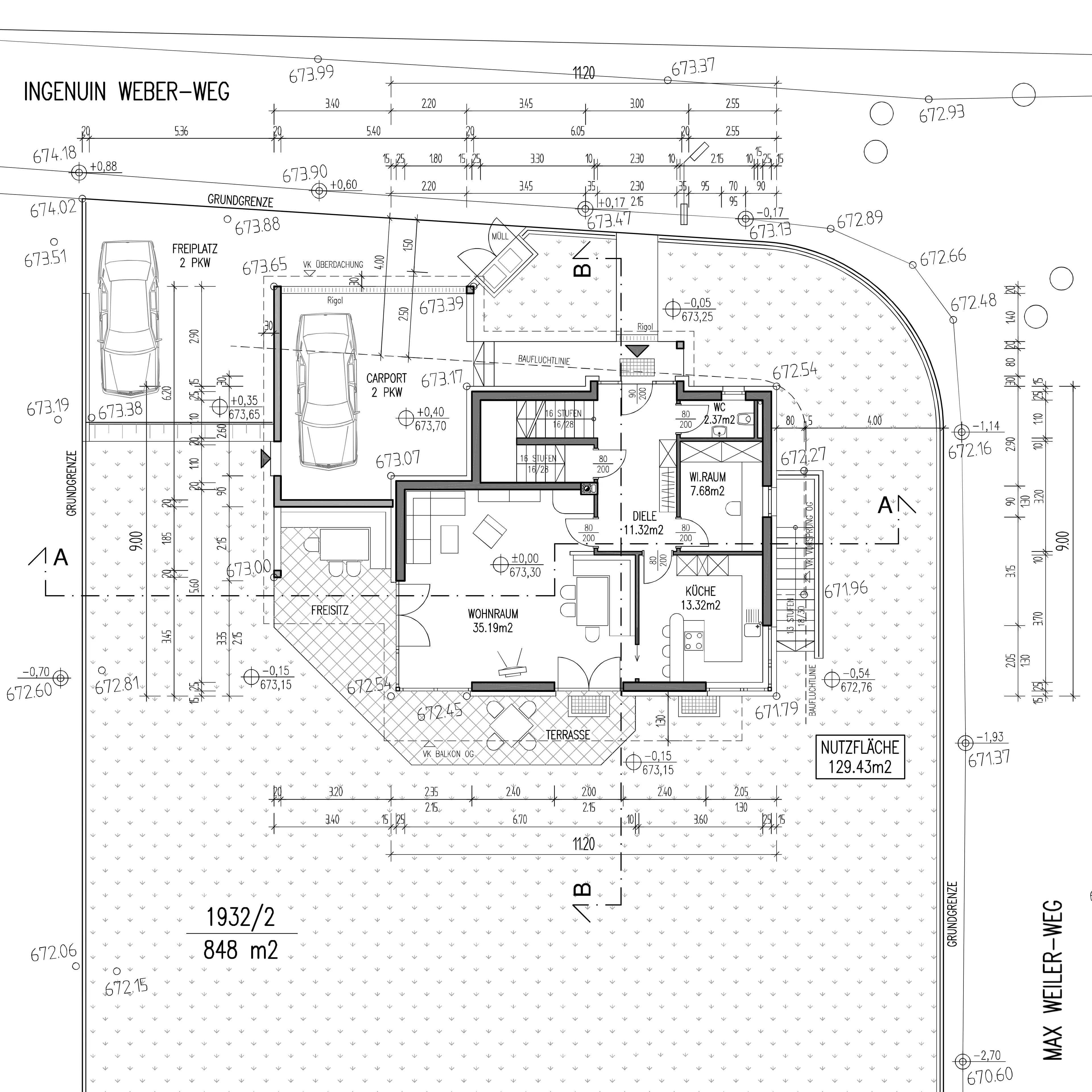
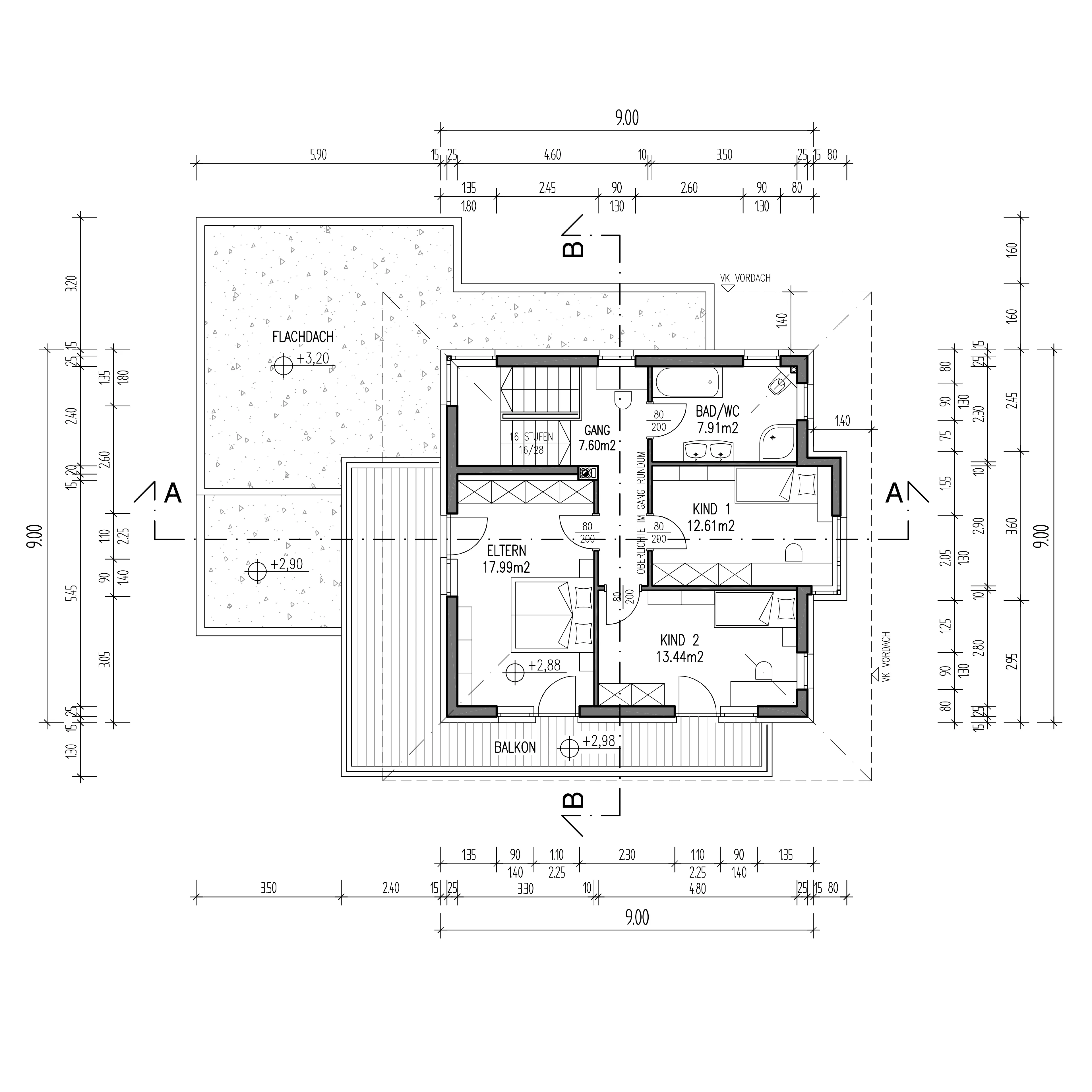
Beschreibung
Auf einem sehr sonnigen, besonders ruhig gelegenen Grundstück in Absam wurde dieses Einfamilienhaus errichtet. Hinsichtlich Architektur und Ausstattung wurde nach den Wünschen des Bauherrn auf Zurückhaltung, Einfachheit, ökonomische Effizienz und Nachhaltigkeit besonderer Wert gelegt. Mit der Beauftragung sehr bewährter und verlässlicher Firmen, mit denen ich schon seit vielen Jahren erfolgreich zusammenarbeite, konnte das Haus in einer Bauzeit von nur 9 Monaten errichtet werden.











