Beschreibung
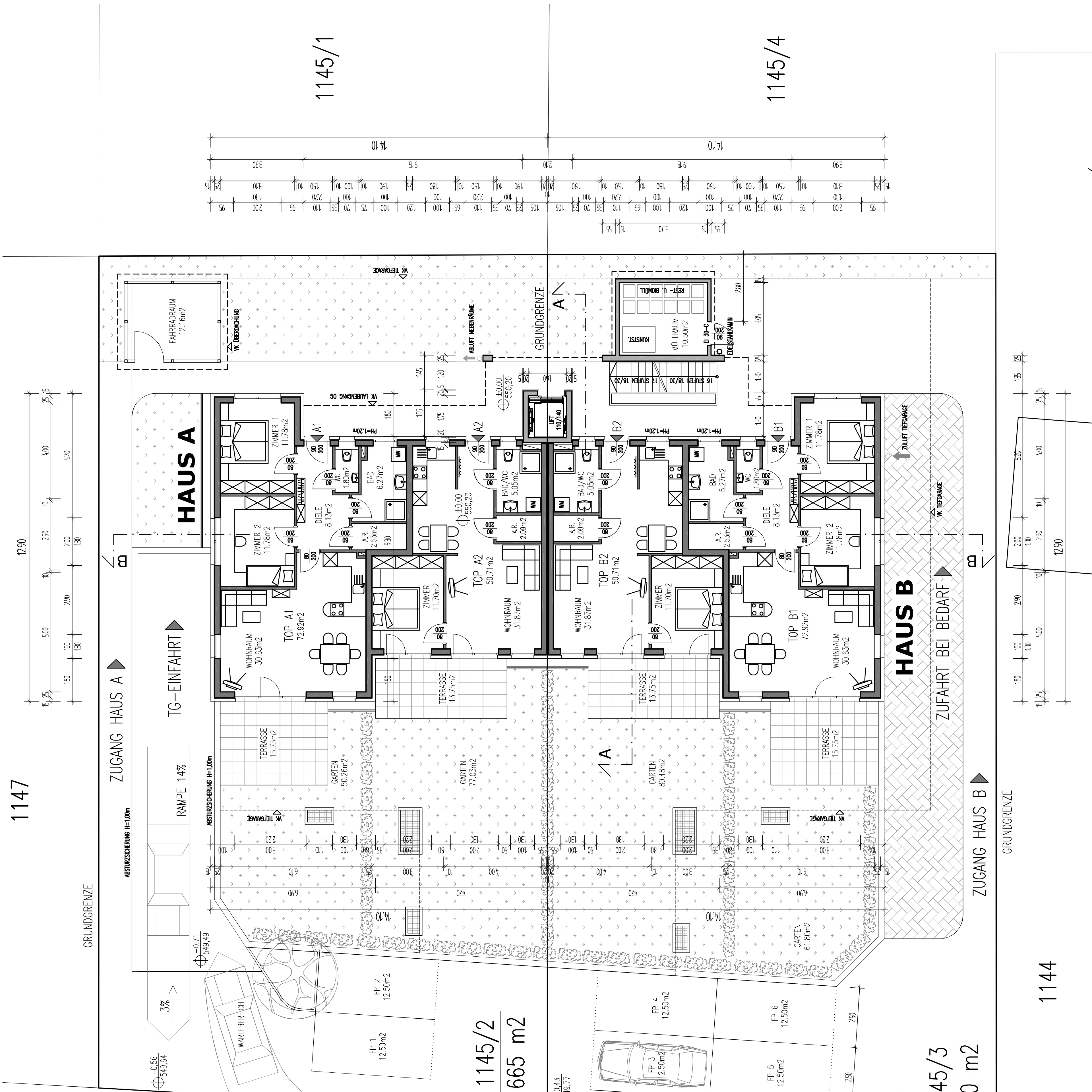
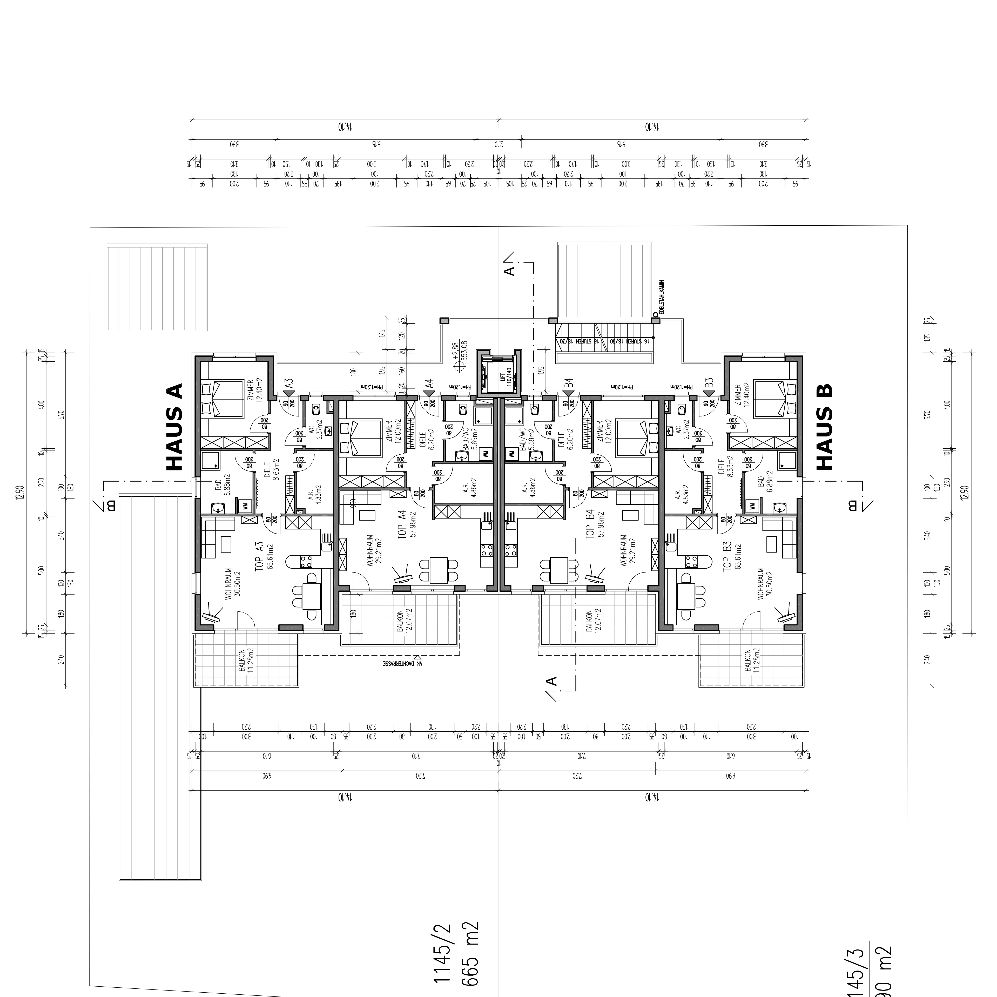
2014 war ich noch bei meinem früheren Arbeitgeber beschäftigt und für Planung und Bau einer Wohnanlage mit 52 Wohnungen in Wattens zuständig. Durch das Projekt inspiriert hatte der beauftragte Schlossermeister den Wunsch ein eigenes Wohnbauprojekt zu entwickeln. Nachdem er in Weer ein geeignetes Grundstück erwerben konnte, beauftragte er mich mit der Planung einer Anlage mit 10 Wohneinheiten. Auf effiziente Grundrisse, großzügige Auslegung der Tiefgarage und eine erprobte Bauweise wurde besonders Wert gelegt.


















