Beschreibung
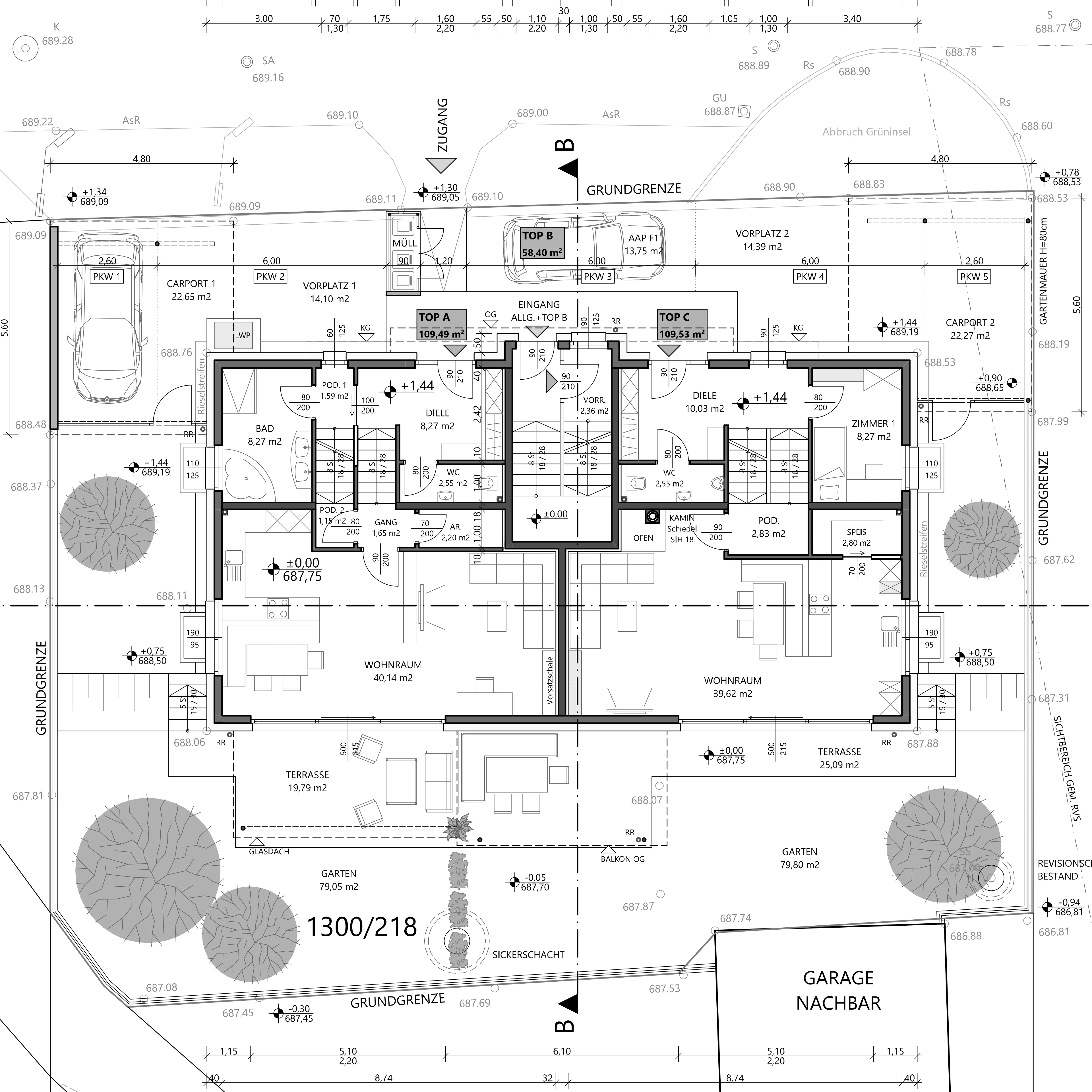
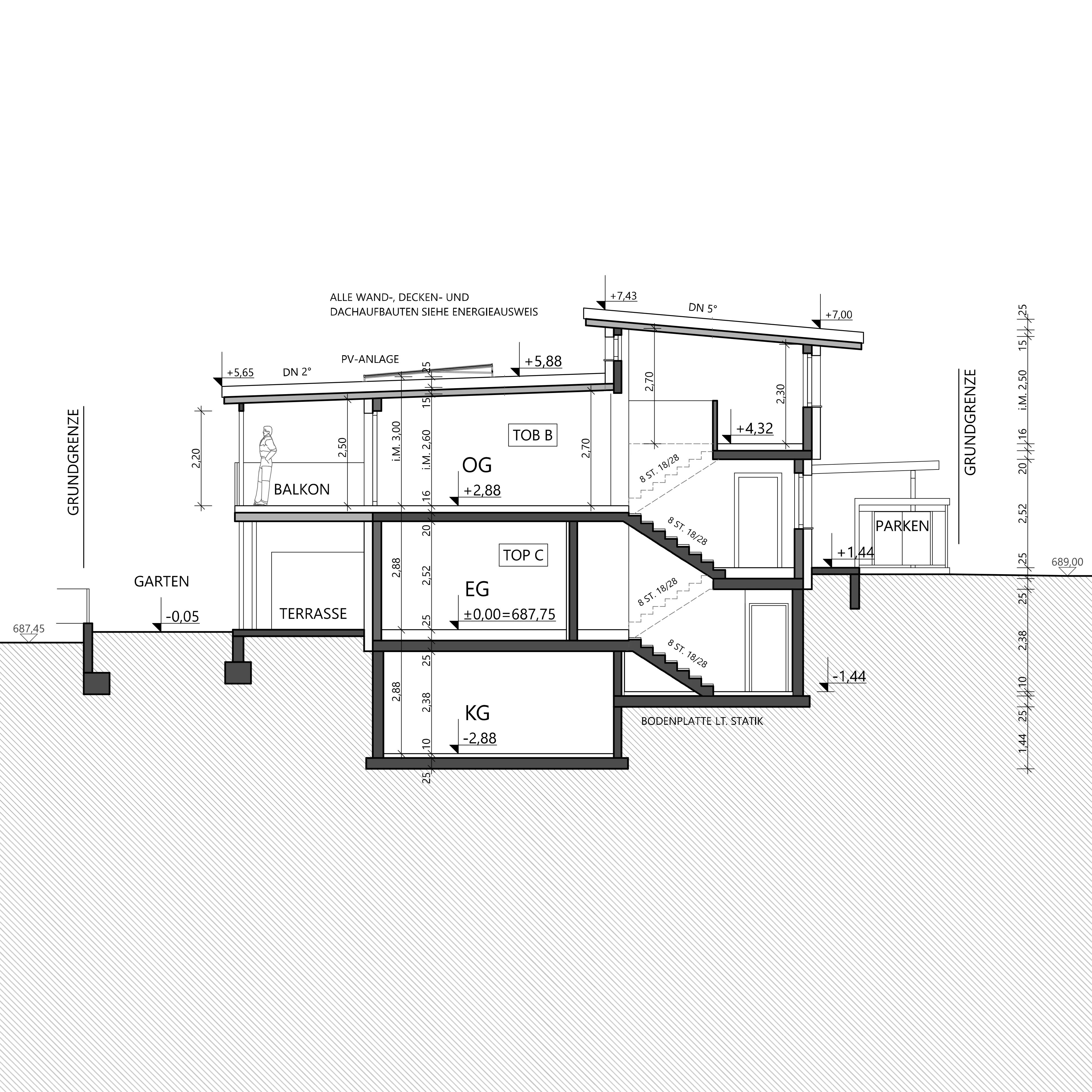
Drei Freunde entschieden sich gemeinsam zu bauen und beauftragten mich mit der Planung. Aufgrund der Hanglage haben wir uns rasch für eine Split-Level-Lösung entschieden. Das Gebäude ist in zwei Doppelhaushälften für die beiden jüngeren Freunde mit Familienplanung und eine Maisonette-Wohnung für den alleinstehenden älteren Freund aufgeteilt. Bedingt durch eine Grundstücksgröße von nur rund 500m2 und der geringen zulässigen Baudichte musste hier sehr kompakt gebaut werden.












