Beschreibung
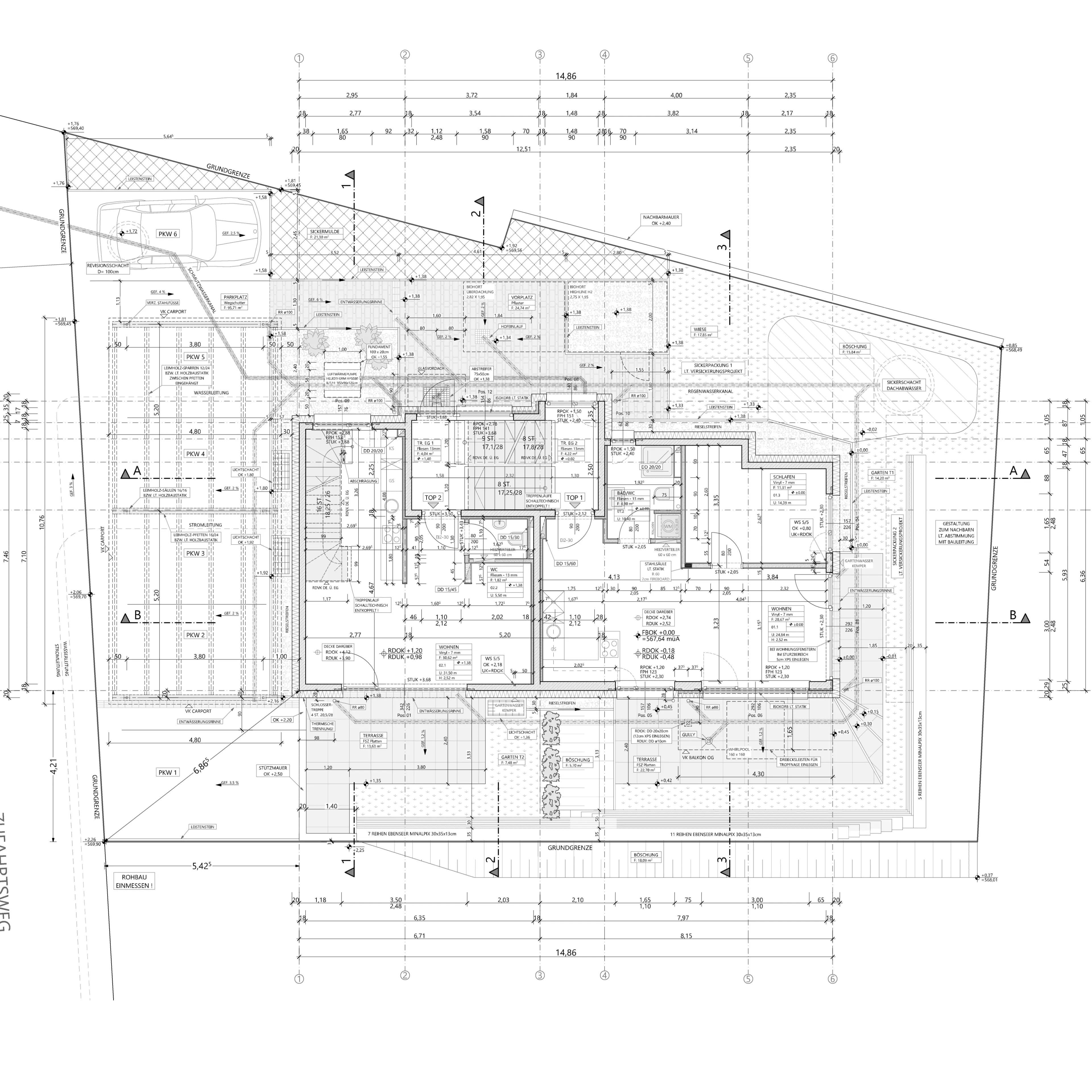
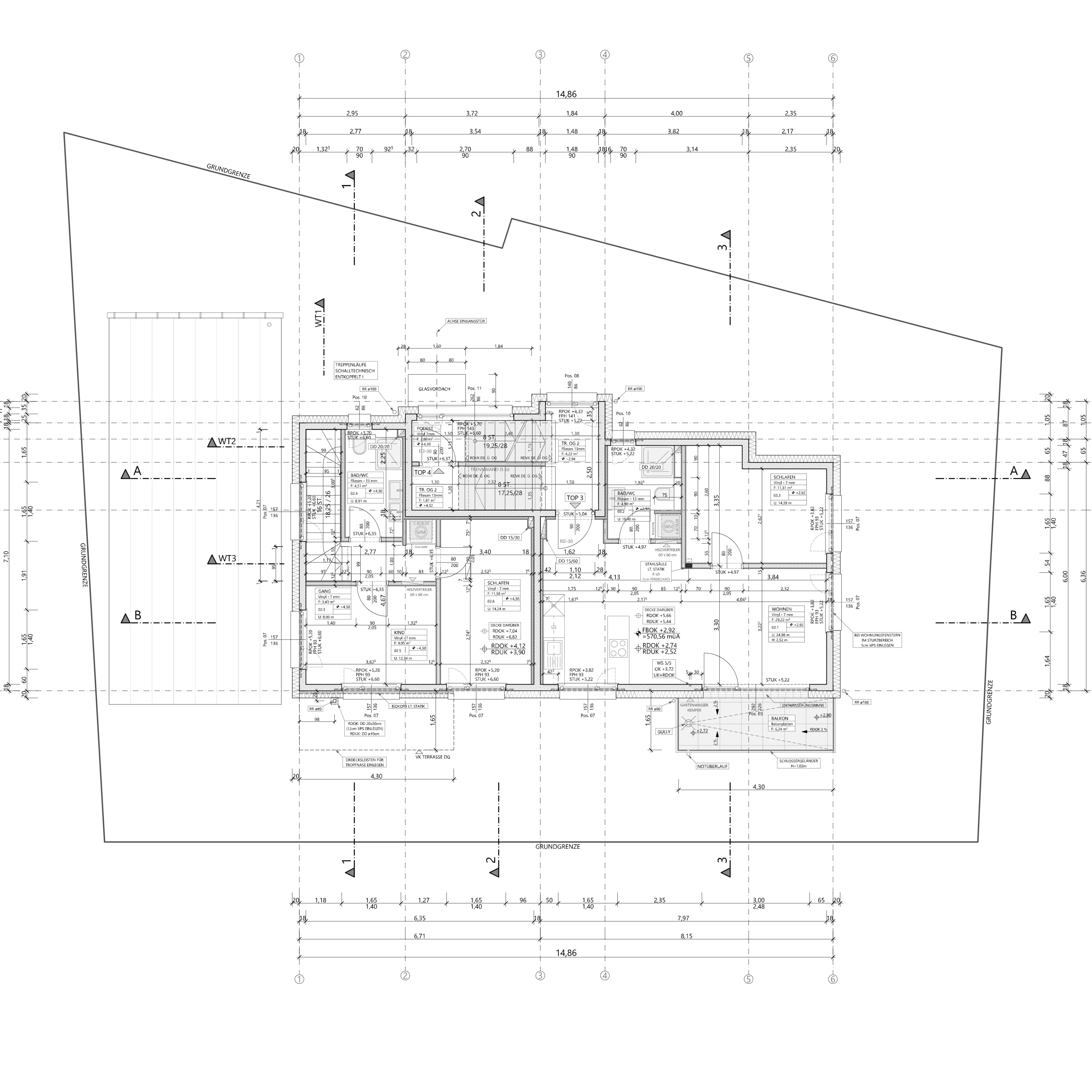
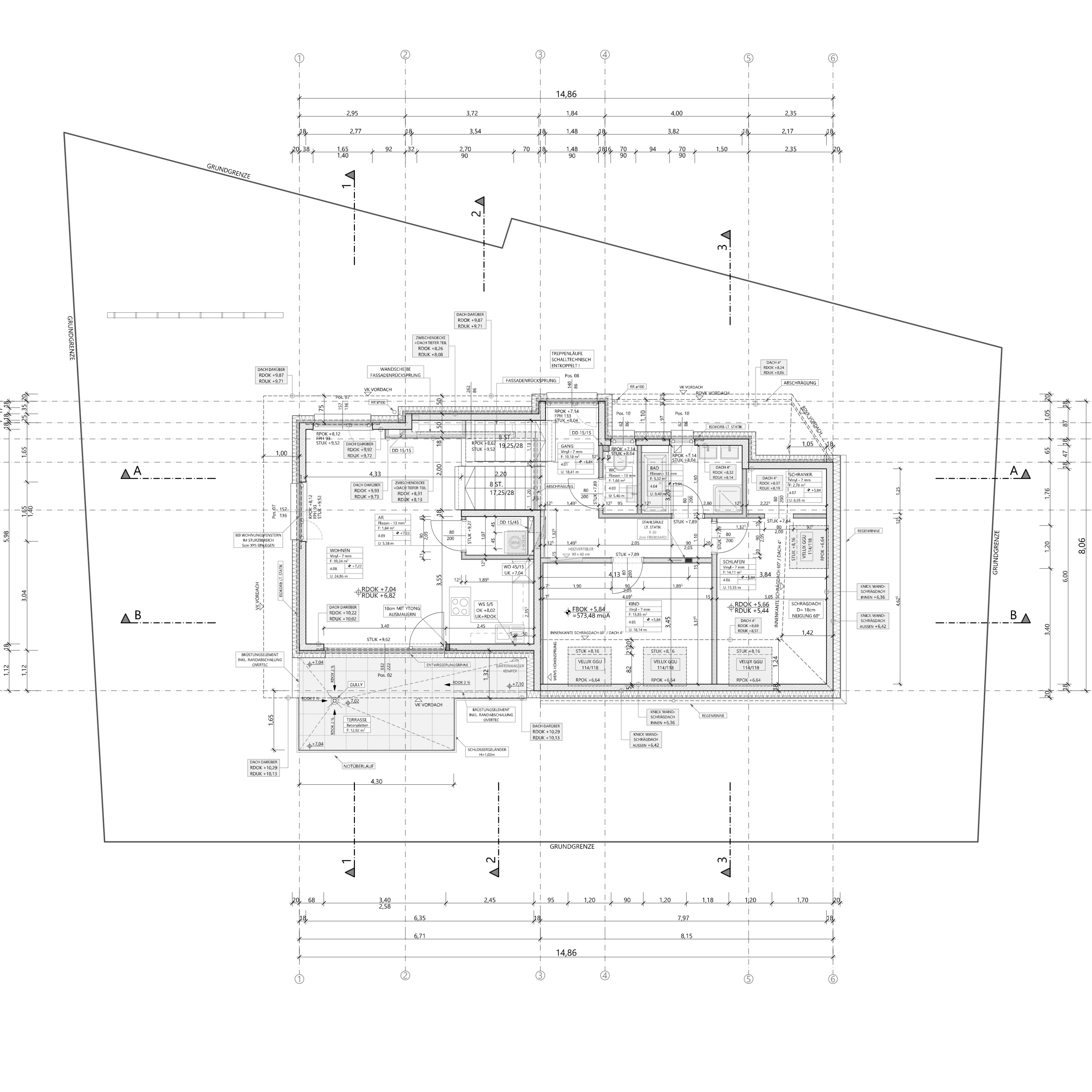
Ein privater Bauherr beauftragte mich mit der Errichtung dieses Wohnhauses. Entwurf und Einreichplanung wurden zuvor von einem Architekten und Freund des Bauherrn ausgearbeitet. Die Aufgabe war ein Wohnhaus mit 4 kompakten Einheiten zu entwickeln, die sich sowohl für Langzeit- als auch Kurzzeitvermietung eignen. Beim Bau galt es Qualität, Termine und Kosten besonders genau im Blick zu behalten.












