Beschreibung
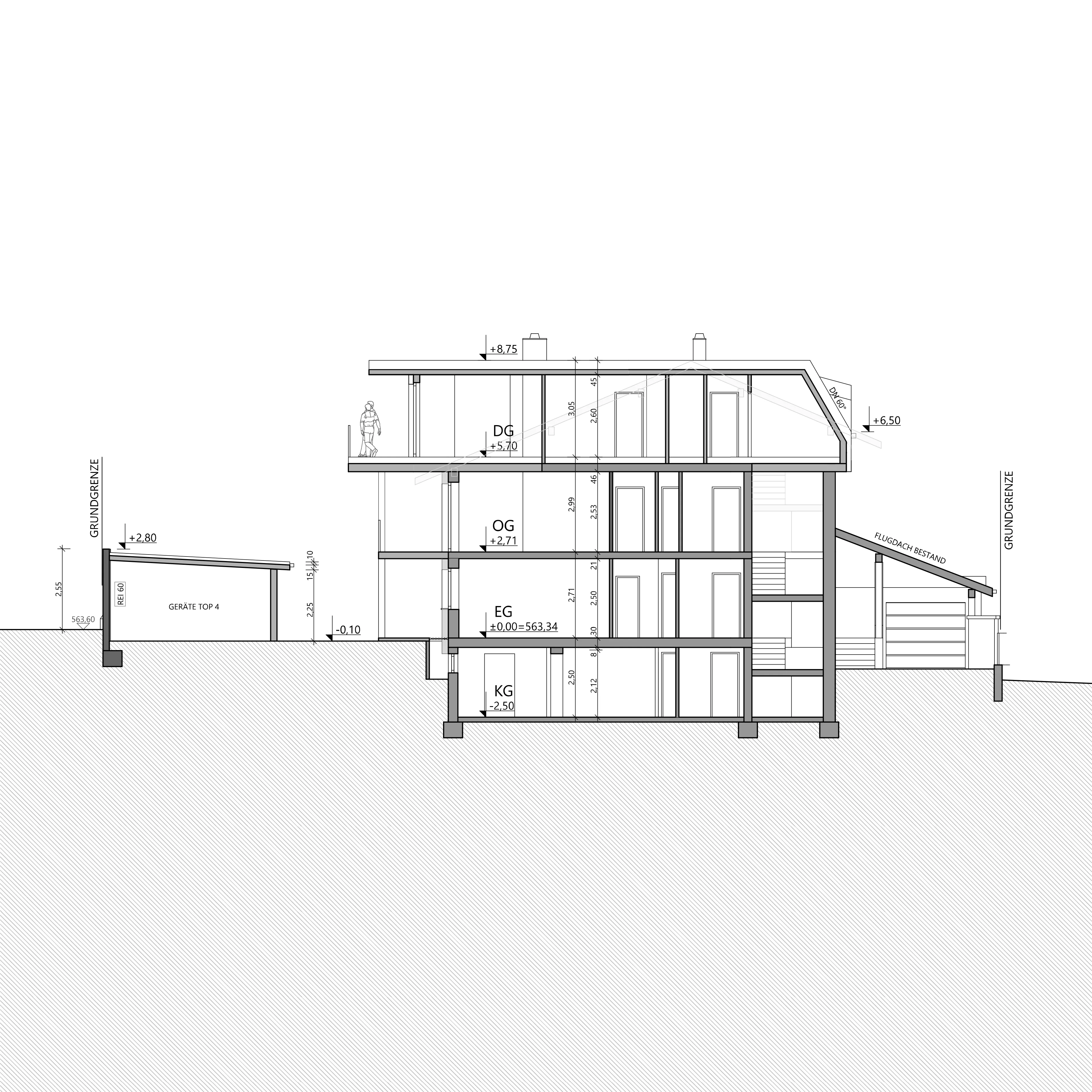
Aufgrund der großen Zufriedenheit nach der Errichtung der 10 Wohneinheiten am Stanglweg beauftragte mich der Bauherr auch mit dem Umbau seines Elternhauses. Aus einem Altbau der 60iger-Jahre erblühte hier ein schmuckes Wohnhaus mit drei Wohneinheiten. Auf komplette Ausstattung, Ökologie und Nachhaltigkeit wurde im besonderen Maße Wert gelegt. Sämtliche neuen Bauteile wurden in Holzbauweise ausgeführt. Die Wohnungen verfügen zusätzlich zur Fußboden-Zentralheizung mit Luftwärmepumpe, über einen hochwertigen Kachelofen. Naturholzparkett, Holz-Alufenster, PV-Anlage, umlaufende LED-Beleuchtung, bodenbündige Duschtassen und Küchen mit Komplettausstattung sind hier Standard. Die Dachgeschosswohnung verfügt zudem über einen eigenen Aufzug.































