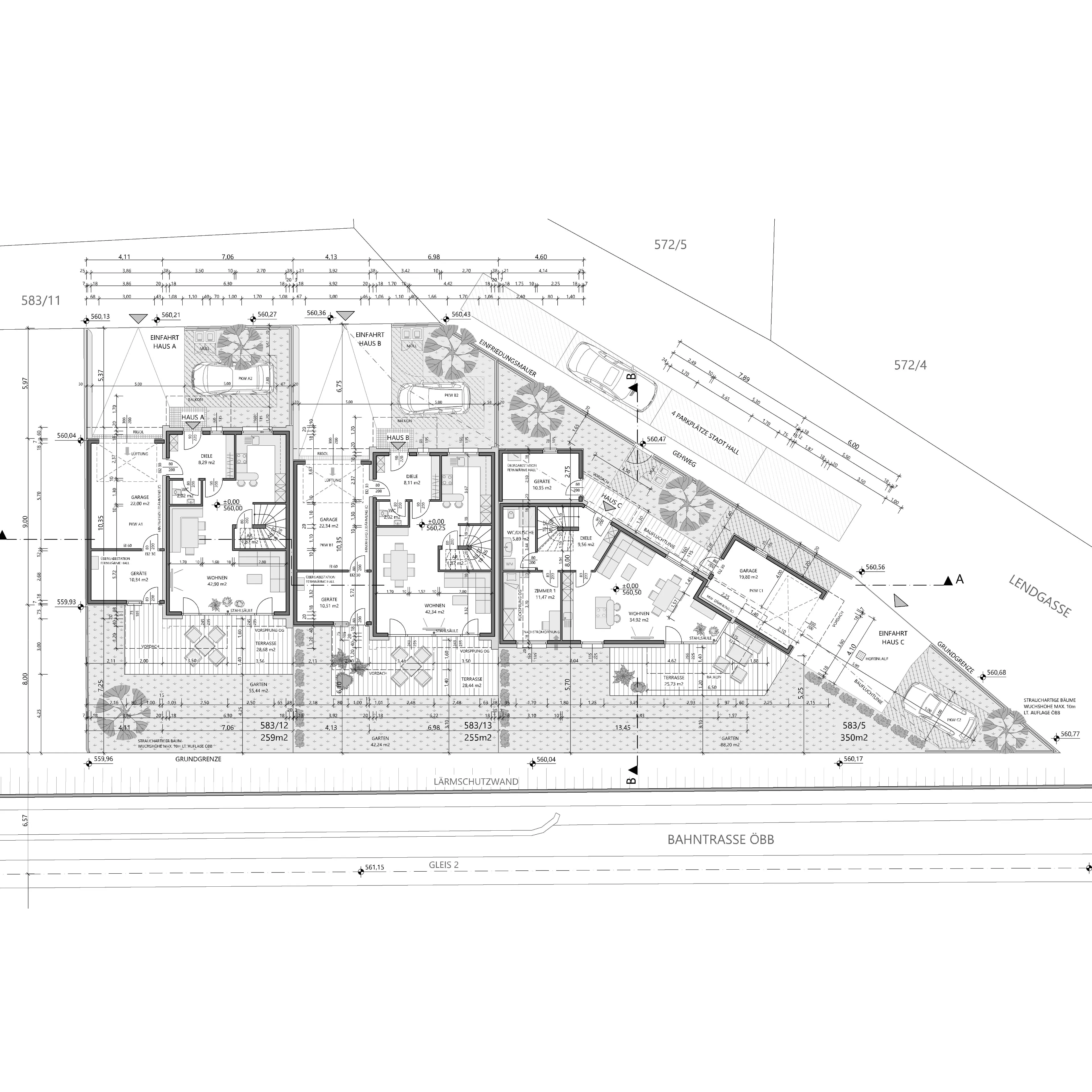
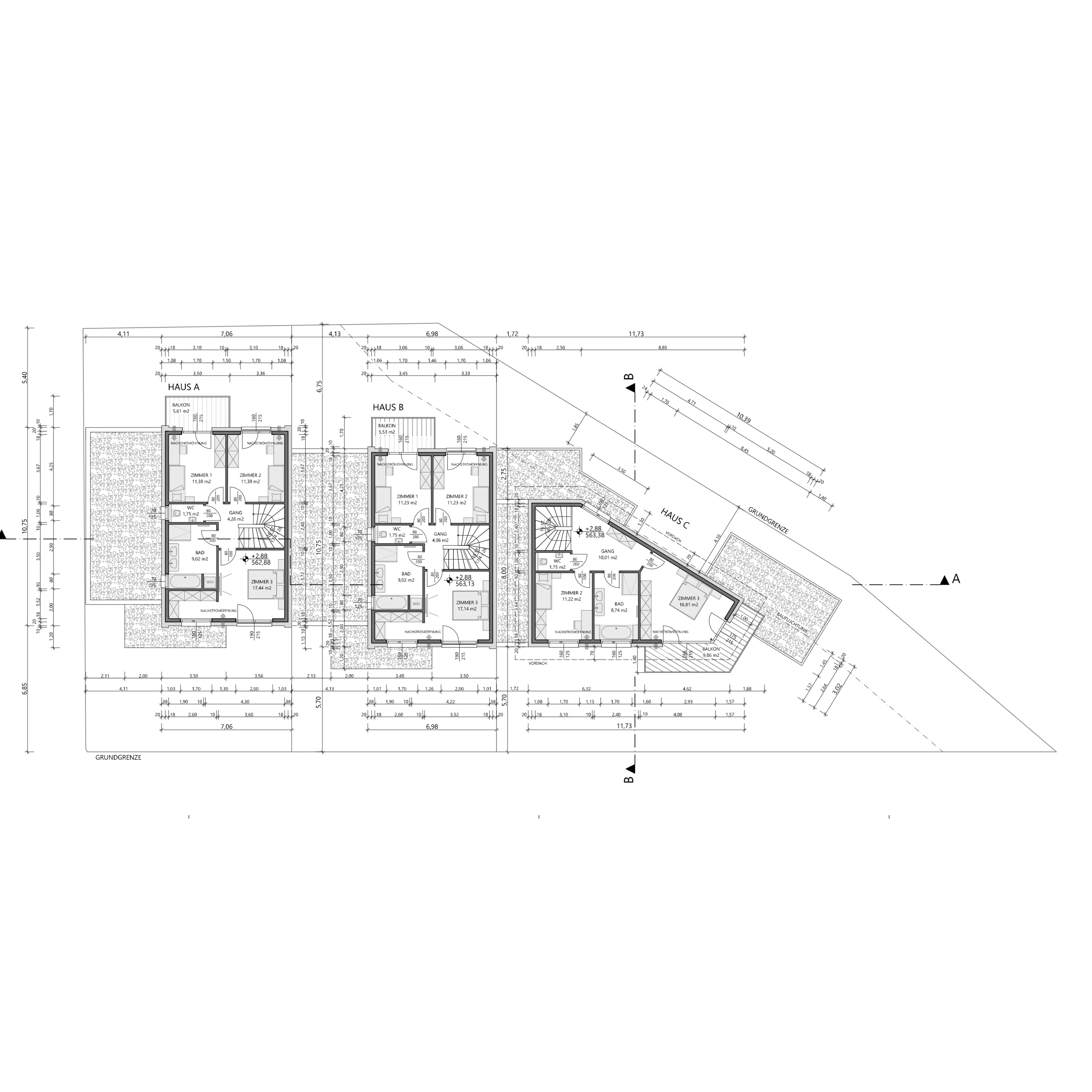
Beschreibung
Nachdem für dieses Grundstück schon eine Wohnanlage mit 9 Einheiten geplant war, hat sich der Bauherr entschieden es aufgrund der besseren Vermarktung mit drei Einfamilienhäusern in gekuppelter Bauweise zu bebauen. Das Erscheinungsbild wurde in enger Zusammenarbeit mit der Stadt Hall entwickelt. Eine nicht zu dichte, harmonische Bebauung mit viel Grünfläche wurde angestrebt. Die Grundrisse folgen der klassischen Gebäudelehre, sind aber flexibel und können leicht nach den Wünschen der Käufer umgestaltet werden. Ein Baubeginn wird voraussichtlich 2026 erfolgen.











